VILLA IN VENDITA IN CITTADELLA A NOVARA
- €240.000
Panoramica
- Villa
- 3
- 3
- Box Doppio
- 200 m²
Descrizione
Se quello che cerchi è una casa dove sentirti finalmente libero, dove ogni membro della tua famiglia possa avere il proprio spazio e dove non dover rinunciare alla comodità della città, questa villa in zona Cittadella è la risposta che aspettavi.
In una delle aree più tranquille e residenziali della città, questa villa costruita alla fine degli anni ’90 si sviluppa su quattro livelli e offre una metratura generosa, perfetta per accogliere le esigenze di una famiglia in crescita o per chi desidera ambienti ben distribuiti e funzionali.
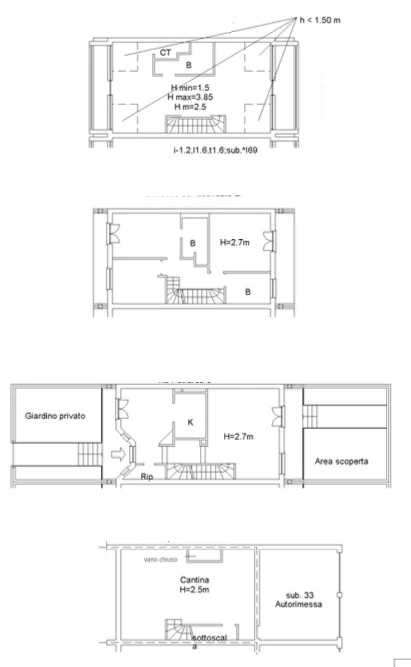
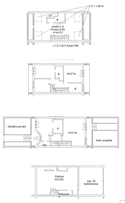
Al piano terra, la disposizione degli spazi è ottimale:
• La zona giorno è ampia, accogliente, ideale per stare insieme, rilassarsi o ospitare senza sentirsi mai stretti;
• La cucina, luminosa e orientata a sud, è un ambiente pratico e ben organizzato, dove cucinare diventa un piacere e dove la luce naturale accompagna ogni momento. Da qui si accede direttamente al giardino privato, suddiviso tra una porzione interna e una esterna, per un totale di circa 65 mq: uno sfogo verde dove i bambini o gli amici a 4 zampe possono giocare in sicurezza e gli adulti concedersi un po’ di relax all’aperto.
Al primo piano la zona notte garantisce la giusta privacy e si adatta perfettamente alle necessità di un’intera famiglia:
•3 camere da letto, ideali per garantire a ciascuno il proprio spazio personale
•2 bagni, uno di servizio cieco e uno padronale finestrato, che rendono la gestione della quotidianità semplice e fluida, anche nei momenti più frenetici.
Al secondo piano si apre uno spazio mansardato con un ulteriore bagno, un ambiente versatile che si presta a diventare ciò che desideri: una camera per gli ospiti, uno studio dove lavorare in tranquillità, una sala giochi per i più piccoli o un rifugio tutto tuo.
Il piano seminterrato ospita una grande cantina, perfetta per organizzare tutto ciò che non vuoi lasciare in vista, collegata direttamente a un box doppio che ti permette di rientrare in casa comodamente in ogni stagione.
La casa è abitabile da subito, ma se lo desideri puoi personalizzarla secondo i tuoi gusti. Gli ambienti sono già funzionali e vivibili così come sono, e non mancano elementi importanti già aggiornati: l’impianto idraulico e la caldaia sono stati rifatti solo un anno fa, un vantaggio concreto che ti evita interventi immediati e spese iniziali.
Se hai sempre sognato di vivere in una villa a Novara, qui troverai davvero tutto: spazio, indipendenza, tranquillità e una posizione strategica, circondata dal verde, riservata ma ben collegata, per vivere la città con facilità senza subirne lo stress.
Vieni a scoprirla dal vivo!
€ 240.000
Classe Energetica “D” – EPI “161,02”
Indirizzo
Apri su Google Maps-
Indirizzo: Via Francesco Petrarca, 6
-
Città: Novara
-
Codice Postale: 28100
Dettagli
-
ID Immobile T455
-
Prezzo €240.000
-
Dimensioni proprietà 200 m²
-
Camere da letto 3
-
Bagni 3
-
Garage Box Doppio
-
Anno di costruzione 1997
-
Tipo Villa
-
Contratto Vendita
-
Piano T
-
Spese condominiali €600
-
Riscaldamento Autonomo Metano
-
Stato immobile Discreto
Caratteristiche
Classe Energetica
-
Classe energetica: D
-
Indice globale di rendimento energetico: 161.02 kWh/mqa
- A+
- A
- B
- C
- 161.02 kWh/mqa | Classe energetica DD
- E
- F
- G
- H
Annunci Simili
VILLA UNIFAMILIARE IN VENDITA IN SAN FRANCESCO, NOVARA
via borsellino e falcone snc, Cittadella, Novara DettagliCalcolo mutuo
-
Acconto
-
Importo Totale
-
Totale rata mensile