MULINO IN VENDITA A RECETTO
  • €590.000

Panoramica

ID Immobile: T1128
  • Casa singola
  • Tipo
  • 1
  • Camera da letto
  • 4
  • Bagni
  • 450 m²
  • Superficie

Descrizione

Il fascino senza tempo di un antico mulino nella campagna di Recetto – 17.000 mq di natura, libertà e possibilità Se per te “casa” significa spazi aperti, natura viva, il suono dell’acqua che scorre e un luogo dove realizzare i tuoi sogni… allora sei nel posto giusto. A pochi minuti dal paese di Recetto, immersa nella quiete della campagna, ti presento una proprietà unica nel suo genere: un ex mulino, circondato da 17.000 mq di terreno a prato, con alberi ad alto fusto, fiori colorati e persino un laghetto privato. Un angolo di paradiso dove natura e storia si incontrano. Attualmente la proprietà dispone di due appartamenti indipendenti, ciascuno composto da 3 locali più servizi. Tuttavia, grazie all’ampiezza degli spazi e alla struttura dell’immobile, è possibile realizzare ulteriori soluzioni abitative o creare ambienti su misura per le tue esigenze. Che tu sia una famiglia numerosa alla ricerca di libertà e tranquillità, o che tu voglia intraprendere un’attività legata all’accoglienza, al benessere o alla creatività, questo luogo è pronto a diventare il tuo rifugio ideale. Una casa che non è solo un’abitazione, ma una scelta di vita. Contattami per scoprire ogni dettaglio e lasciarti ispirare da ciò che questo posto può offrirti. Se ti sei già innamorato di questa casa, ma temi che la vendita del tuo immobile possa essere un ostacolo, non temere! I tempi medi di una vendita con SIM IMMOBILIARE sono di 58 giorni. Portati avanti e scopri il valore della tua casa copiando questo link nella barra di ricerca https://www.venderecasanovara.it Ti ricordiamo che SIM Immobiliare non è un’agenzia come le altre. A differenza delle agenzie tradizionali noi non ci limitiamo solo a mostrarti le case che abbiamo a disposizione, ma vogliamo aiutarti a trovare la casa ideale, per farti risparmiare tempo e ridurti lo stress e proprio per questo, prima di farti vedere la casa, ti faremo una breve “intervista”, così potremmo capire insieme se questa sia la soluzione giusta per te! Questo ti permetterà di evitare inutili giri a vuoto e, nel caso in cui la casa non rispondesse alle tue esigenze, inseriremo la tua richiesta in una lista con cui verrai avvisato con la massima priorità non appena rientrerà la casa dei tuoi sogni! SIM Immobiliare, leader a Novara per vendere e comprare casa!

Video

  • Indirizzo: via molino molinetto
  • Città: Recetto
  • Codice Postale: 28060

Dettagli

  • ID Immobile T1128
  • Prezzo €590.000
  • Dimensioni proprietà 450 m²
  • Camera da letto 1
  • Bagni 4
  • Anno di costruzione 1730
  • Tipo Casa singola
  • Contratto Vendita
  • Piano t
  • Riscaldamento Autonomo Metano
  • Stato immobile Buono

Caratteristiche

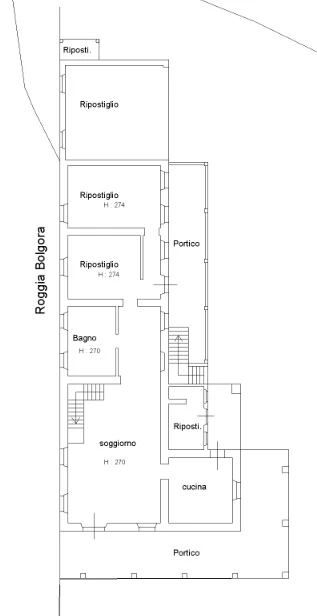
Planimetrie

Classe Energetica

  • Classe energetica: E
  • Indice globale di rendimento energetico: 218.18 kWh/mqa
  • A+
  • A
  • B
  • C
  • D
  • 218.18 kWh/mqa | Classe energetica E
    E
  • F
  • G
  • H

Annunci Simili

Calcolo mutuo