Carpignano Sesia – Villa semi indipendente
  • €169.000

Panoramica

ID Immobile: T3166
  • Villa
  • Tipo
  • 2
  • Camere da letto
  • 1
  • Bagno
  • Box Singolo
  • Garage
  • 173 m²
  • Superficie

Descrizione

Se stai cercando una casa che sappia accoglierti con calore, tranquillità e la giusta dose di indipendenza, questa bellissima villa semi-indipendente di 173 mq a Carpignano Sesia potrebbe essere ciò che fa per te.
In una posizione tranquilla e riservata, è ideale per chi desidera vivere in un contesto sereno e rilassante.

L’abitazione è composta da ambienti funzionali e ben distribuiti.
Appena varcata la soglia, ti accoglie un ingresso che introduce con armonia agli spazi della casa.
La cucina è abitabile, spaziosa e conviviale, con una porta che si apre direttamente sul giardino: perfetta per pranzi e cene all’aperto.
Il soggiorno è il cuore pulsante della casa: ampio, luminoso e impreziosito da una splendida portafinestra tripla che incornicia il verde esterno e lascia entrare la luce naturale durante tutta la giornata.
La zona notte è composta da due camere generose nelle dimensioni, ideali per garantire privacy e relax, mentre il bagno finestrato, dotato di vasca, è pensato per regalarti momenti di benessere in totale tranquillità.

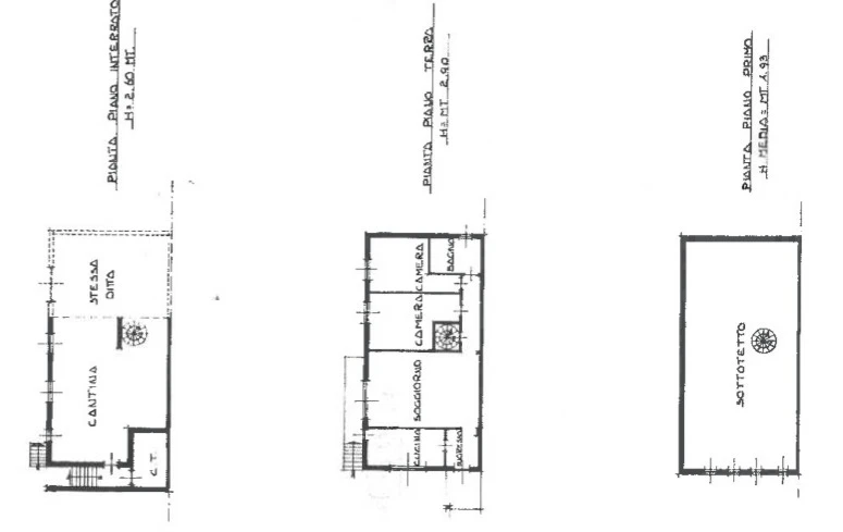
A completare la proprietà troviamo una taverna, perfetta per i momenti conviviali con amici e parenti, una soffitta da sfruttare come spazio aggiuntivo con una camera, un box auto e un giardino privato, ideale per vivere all’aperto e godersi le giornate di sole.
Una soluzione ideale per chi cerca indipendenza, natura e tranquillità, senza rinunciare alle comodità del paese.

Prezzo: €169.000

Se ti sei già innamorato di questa casa, ma temi che la vendita del tuo immobile possa essere un ostacolo, non temere! I tempi medi di una vendita con SIM IMMOBILIARE sono di 58 giorni. Portati avanti e scopri il valore della tua casa copiando questo link nella barra di ricerca: https://www.venderecasanovara.it.

Ti ricordiamo che SIM Immobiliare non è un’agenzia come le altre. A differenza delle agenzie tradizionali, non ci limitiamo a mostrarti le soluzioni disponibili, ma ci impegniamo ad aiutarti davvero a trovare la casa giusta per te, con l’obiettivo di farti risparmiare tempo, evitarti inutili stress e accompagnarti in un percorso sereno e consapevole.
Per questo motivo, prima ancora di organizzare una visita, ti dedicheremo una breve intervista conoscitiva: un momento utile per capire insieme se l’immobile che ti interessa è davvero in linea con le tue esigenze. E se così non fosse, nessun problema: inseriremo la tua richiesta nel nostro database riservato e sarai tra i primi ad essere contattato non appena entrerà una nuova proposta in linea con ciò che stai cercando.

SIM Immobiliare, leader a Novara per vendere e comprare casa.

Video

  • Indirizzo: Via Minoretti snc
  • Città: Carpignano Sesia
  • Codice Postale: 28064

Dettagli

  • ID Immobile T3166
  • Prezzo €169.000
  • Dimensioni proprietà 173 m²
  • Camere da letto 2
  • Bagno 1
  • Garage Box Singolo
  • Anno di costruzione 1979
  • Tipo Villa
  • Contratto Vendita
  • Piano 1
  • Riscaldamento Autonomo Metano
  • Stato immobile Originale

Caratteristiche

Planimetrie

Classe Energetica

  • Classe energetica: G
  • Indice globale di rendimento energetico: 368.07 kWh/mqa
  • A+
  • A
  • B
  • C
  • D
  • E
  • F
  • 368.07 kWh/mqa | Classe energetica G
    G
  • H

Annunci Simili

Calcolo mutuo